| 產品類型: | 圓振動篩 |
|---|---|
| 廠家: | 中譽鼎力 |
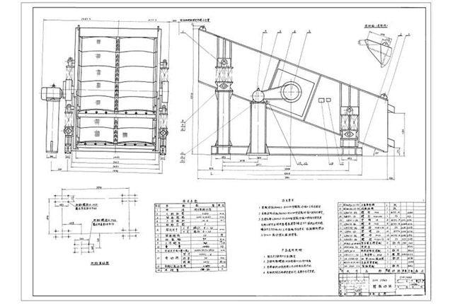
| 設備型號: | DL2YKQ2060 |
| 篩網層數: | 2層 |
| 篩面規格: | 2000*6000mm |
| 篩網面積: | 12㎡ |
| 振動頻率: | 970r/min |
| 篩孔尺寸: | 5-50mm(可定制) |
| 處理能力: | 50-350t/h |
| 電機功率: | 15kw |
| 篩面傾角: | 27° |
| 雙振幅: | 5-7mm |
| 激振器型號: | JF90 |
| 篩網材料: | 金屬絲編織 |
| 設備產地: | 河南新鄉 |
| 應用行業: | 礦山、砂石骨料、建筑材料 |
下圖為雙層ykq2060振動篩圖紙,高清圖紙可聯系在線客服獲取。
這臺振動篩的時產量在50-350噸左右,用的電機是15千瓦的,是一款兩層篩網的振動篩,適用在選礦、選煤、金屬或非金屬、電力、石子等物料的篩選分級。
像2060振動篩時產量50-350噸左右,產量比較小,價格一般在十幾萬左右都可以買到,當然具體還是要咨詢設備生產廠家,因為價格受到多方面原因的影響,歡迎有需要的用戶前來咨詢選購。

四川地區時產1500噸石場生產線破碎物料:石灰石 青石 所在區域:四川

桐柏縣山峰石材時產1000-1200噸智能環保砂石生產線破碎物料:石灰石所在區域:河南南陽

云南保山時產200噸石灰石破碎生產線破碎物料:石灰石所在區域:云南保山

四川省眉山市仁壽時產600噸砂石料生產線破碎物料:山石 碎石 所在區域:四川省眉山市

可逆式錘式破碎機指的是轉子可以自由旋轉的設備,不僅可以正轉、甚至可以反轉,物料不僅可以受到一面...
破碎花崗巖不建議用重錘破碎機,因為花崗巖硬度比較高,而重錘破碎機采用的是錘打石的工作原理,破碎...

錘式破碎機根據其結構的不同可分為重型單段錘式破碎機、整形錘式破碎機和雙轉子錘式制砂機等。錘式破...
立軸錘式破碎機的破碎過程就是通過式破碎,一般物料由進料口進入,可以快速的排出,不會造成物料的堵...